Haus in Bulgarien zu verkaufen

Landhaus mit großem Bauland an der Schwarzmeerküste zu verkaufen


Die grüne Oase

Nahe an der Küste und dem Treiben an den Stränden und doch gerade weit genug weg

Landaus mit sehr großem Grundstück an der Schwarzmeerküste in Bulgarien – allein stehend, Ortsrandlage

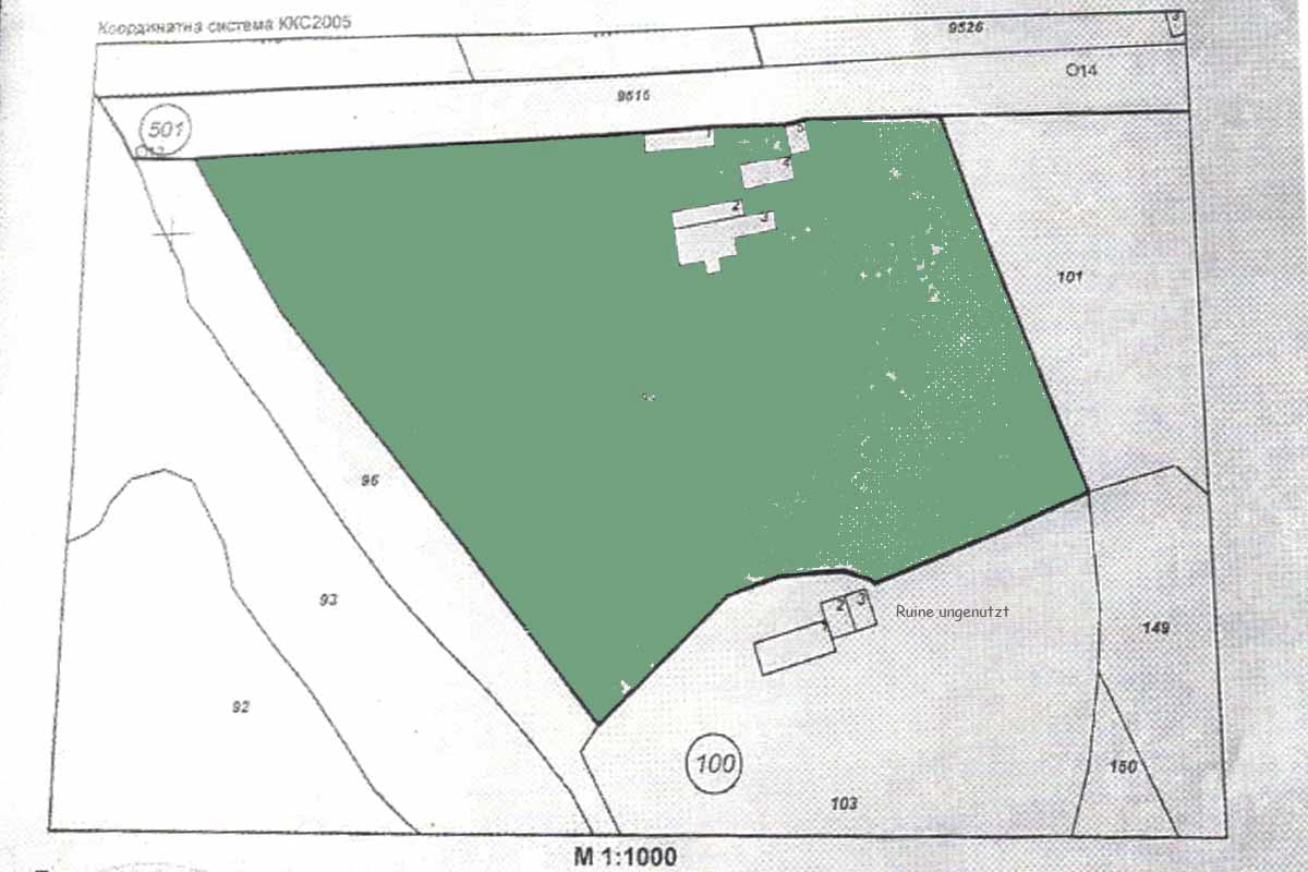
Privatverkauf – keine Provision – aktuelle und notariell geprüfte Unterlagen vorhanden – als Bauland im Liegenschaftskataster eingetragen – 7500qm – besondere Lage

Das Anwesen ist eine wahre Perle inmitten einer grünen Oase. Das Grundstück ist mit 7500qm sehr groß und bietet viele Möglichkeiten zum Erholen oder zur landwirtschaftlichen Nutzung und Tierhaltung (sehr attraktiv z. B. Für Pferdeliebhaber). Der Boden wurde die letzten Jahre geschont und nur biologisch bewirtschaftet. Die besondere Schwarze Erde ist daher in einem sehr guten und biologisch wertigem Zustand und bietet optimale Voraussetzungen zum Gärtnern, für die Selbstversorgung oder auch Tierfütterung. Für das komplette große Grundstück liegen die offiziellen Papiere als Bauland vor. Auch alle anderen wichtigen Unterlagen zur Liegenschaft sind aktuell und notariell beglaubigt, was in dieser einmaligen Lage in dieser Gegend nur sehr selten zu finden ist. Alle Pläne zur Liegenschaft sind aktualisiert und vollständig und ermöglichen daher eine reibungslose und schnelle Kaufabwicklung, ohne Zeitaufwand für Recherchen und kostspielige Aktenüberprüfungen. 

<p>Raum vorbereitet zum Ausbau</p>

Daten zum Objekt

Zimmer und Quadratmeter

☁️ Küche ca.15qm
☁️ Bad ca.2,5qm
☁️ Wohnzimmer ca.16qm
☁️ Schlafzimmer ca.16qm
☁️ weiteres Zimmer zum Ausbau vorbereitet ca.17qm
☁️ kleines Anbauzimmer mit eigener neuer Tür ca.3qm
☁️ kleiner Abstellraum mit Tageslicht ca.2qm
☁️ Flur ca.2qm
☁️ Waschmaschinenraum ca.1,5qm
☁️ Garage ca.12qm

☁️ aktuell nutzbare Wohnfläche: ca.75qm
☁️ Grundstück: 7500qm
☁️ Strom & Wasser & Internet: ja - kein Baustrom, sondern günstiger privater Vertrag - kann einfach umgeschrieben werden

<p>Raum vorbereitet zum Ausbau</p>

Lage:

Das Grundstück

Das Grundstück ist in Alleinlage und umgeben von verschieden Obstsorten wie Pflaumen, Feigen, Weinreben, Walnuss, Gojibeeren und anderen gesunden Köstlichkeiten. Auch hier wurde bewusst auf den Einsatz von Chemikalien verzichtet. Das Grundstück bietet bietet durch den großen Baumbestand auch bei Hitze viele Schattenplätze mit angenehmen Klima. Als weitere Besonderheit verfügt die Liegenschaft über eine eigene Asphaltstraße und ist daher ganzjährig gut anfahrbar.

Sehr gut angebunden, erreicht man in nur zehn Minuten die Bundesstraße an der Küste und hat die schönsten Strände in unmittelbarer Nähe. Eine der schönsten Buchten Europas (Bolata bei Kaliakra) ist über das nahegelegene Kavarna zu erreichen, Goldstrand und die großen Strände bei Ezerets, wie auch die Küstenstadt Varna mit internationalem AirPort und Fachkliniken, sind über die Bundesstraße gut erreichbar. Damit bietet das Objekt eine besondere Lage und trotzdem eine gute Anbindung zu den wichtigen Zielen des Oblast Dobrich, z.B. den großen Golfplätzen, Thermalbädern , Spa's und Touristenmeilen. Im nahegelegenen Kavarna findet man neben medizinischer Versorgung im Krankenhaus auch Tierärzte und umfangreiche Einkaufsmöglichkeiten wie einen großer LIDL-Markt, Tomy-Supermarkt, Citymall, dauernder Landwirtschaftsmarkt im Zentrum, Baumarkt und viele kleine Läden für den täglichen Bedarf. Über die gut ausgebaute Küstenbundesstraße erreicht man die attraktive Küstenstadt Balchik oder von dort für Einkäufe und Behördengänge die Kreisstadt Dobrich. In direkter Nähe sind kleinere Magazine für den schnellen Einkauf auch mit dem Fahrrad erreichbar.

Gallery

Nordseite des Haupthauses

Nordseite des Haupthauses

Anbau mit eigener Tür

Anbau mit eigener Tür

WC und Dusche

WC mit Dusche / Flur mit neuer Therme

weitere Stallungen

weitere Stallungen

Landhaus am Schwarzen Meer zu verkaufen

Südseite des Haupthauses und kleiner Anbau / Fenster zum Teil schon erneuert

Das Haus:

Informationen zum Gebäude

Das Haupthaus ist aus massivem Naturstein gebaut und mit seinen 60 cm dicken Wänden sehr robust und thermisch optimal der Gegend angepasst. Im Sommer kühl, im Winter gut beheizbar. Dadurch kann auf den Einsatz von Klimaanlagen auch an sehr heißen Tagen verzichtet werden und im Winter wohlige Wärme durch Holzbefeuerung erzielt werden. Der Bauschnitt des Gebäudes entspricht nicht dem üblichen Baustiel aus Zeiten des Kommunismus, sondern ist ein den hiesigen Bedingungen angepasster individueller Bau mit recht hohen Decken, großen Fenstern und schönen Zimmern. Das Haus hat eine innen liegende beheizbare Toilette und Nasszelle mit Dusche und zusätzlich ein altes Plumpsklo im Hof. Die Warmwassertherme ist ein aktuelles und neuwertiges Modell und befindet sich im Vorraum zum Bad. Hier ist auch ein Stellplatz für eine Waschmaschine mit Wasser- und und Abwasseranschluss.
Die Elektrik ist schon weitestgehend modernisiert und ein moderner Sicherungskasten sichert alle Leitungen ab. Die Fenster des Haupthauses und des Anbaus sind bereits durch moderne neue Doppelglasfenster ersetzt. Das Dach ist dicht und alte Problemstellen wurden mit neuen Ziegeln versehen. In zwei Zimmern wurde ein robuster Betonboden eingegossen (Fliesen in der Küche, hochwertiges deutsches Laminat im anderen Raum), in einem Zimmer wurde der behagliche Lehmboden auf Grund der angenehmen Eigenschaften und des guten Zustands beibehalten. Für einen höheren Lebensstandard bietet das Haus eine gute Grundlage für Umbauten, Sanierungen oder anderer Bauvorhaben. Ein weiterer großer Raum wurde bereits vollständig entkernt und zum weiteren Ausbau vorbereitet. Damit stehen vier Zimmer plus Bad und kleinem Anbauzimmer zur Verfügung. Ein zusätzlicher kleiner Raum ist im zweiten neueren Anbau. Er ist vollständig nutzbar, hat ein neues Doppelglasfenster und ist über eine eigene neue Außentür zu erreichen. Die Küche verfügt über einen offenen Kamin, der derzeit als Stellplatz für einen geschlossenen Holzofen genutzt wird. Hier befindet sich eine gemauerte Spülstelle mit Warmwasser. Im Vorgarten steht ein Lehmziegelofen, in diesem lassen sich leckere Pizzas und andere Leckereien im Freien zubereiten.

☁️ Best offers ☁️ Free delivery ☁️ Perfect design ☁️ Comfort ☁️ Support 24/7 ☁️ Vibes
☁️ Best offers ☁️ Free delivery ☁️ Perfect design ☁️ Comfort ☁️ Support 24/7 ☁️ Vibes
Landhaus an der Schwarzmeerküste zu verkaufen

Garten und Nebengebäude

Es gibt eine größere Anzahl von kleinen Nebengebäuden und Stallungen, welche alle in das Liegenschaftskataster eingetragen sind! Das ist leider bei vielen Objekten in der Gegend nicht der Fall und beschert im Nachhinein oft Ärger und Kosten. Hier erhalten Sie alle Unterlagen, alle Gebäude sind legal und aktuell verzeichnet. Die Liegenschaft ist frei von Belastungen! Einige der Stallungen wurden von uns teilsaniert und sind sofort für die Tierhaltung nutzbar (z.B. Hühner, Schweine, etc.).Einige der Stallungen wurden von uns Teil saniert und sind sofort für die Tierhaltung nutzbar z.B. Hühner, Schweine etc.

Ein Teil des Grundstücks wurde von uns für den biologischen Anbau genutzt und wurde nur per Hand und ohne Bodenverdichtung bearbeitet. Ein separater Teil des Gartens, mit direktem Zugang, hat einen kleinen Bestand aus alten Obstbäumen, es gibt einen alten Weinrebenbestand der rekultivierbar ist. Das Grundstück liegt über einem Süßwasserreservoir und bietet günstige Voraussetzungen für Brunnenbohrungen. In der weiten Nachbarschaft gibt es viele deutsche Auswanderer, einige Ferienhäuser und nette bulgarische Nachbarn. So können Sie in Ihrer Oase Ihre Ruhe genießen oder auch Kontakte in Fußnähe aufbauen.

Landhaus an der Schwarzmeerküste zu verkaufen

Lage und Umgebung:

Grundstück

Durch den gesunden und nährstoffreichen Boden bietet das Grundstück Möglichkeiten zur Selbstversorgung oder zur eigenen Futterherstellung für z.B. Pferdehaltung. Durch die besondere Lage sind Sie einerseits abgelegen von Landwirtschaftsflächen und den Windparks der Küstenorte, andererseits jedoch küstennah und gut angebunden. Das Grundstück ist trotzdem weit genug von befahrenen Straßen entfernt, sodass z.B. Ihre Katzen sehr sicher sind. Der Ort ist gepflegt, hat ein eigenes kleines Rat- und Gemeindehaus. In diesem Ort gibt es keine Ansammlungen von kriminellen Unterschichten, es geht sehr friedlich zu. Durch die besondere Lage können Sie sich jedoch selbst frei und unbehelligt entfalten.

Im ganzen Oblast Dobrich gibt es nicht viele Liegenschaften, welche diese Vorzüge vereinen. Das wurde uns von vielen Bulgaren und anderen Auswanderern mehrfach bestätigt, welche den Aufenthalt bei uns immer sehr genossen haben. Aus familiären Gründen müssen wir unsere Oase leider verlassen und unseren Verpflichtungen an anderer Stelle nachkommen. Wenn Sie bereits Objekte in der Oblast Dobrich betrachtet haben, werden Sie die Vorzüge der besonderen Lage und die „saubereren Papiere“ zu schätzen wissen. Die ganze Fläche von 7500qm hat zusätzlich die notarielle schriftliche Auszeichnung als Bauland. Alle Unterlagen liegen vollständig vor. 

keine Provision

Durch den Privatverkauf entfällt die Provision

Kaufabwicklung

Alle wichtigen unterlagen liegen bereits vor und sind notariell geprüft

Lage

Durch die besondere Lage ist Tierhaltung kein Problem

Landhaus an der Schwarzmeerküste zu verkaufen

Liegenschaft:

weitere Gebäude

Vier Stallungen sind nutzbar, zwei weitere sanierungsbedürftig – alle Stallgebäude sind im Liegenschaftskataster eingetragen. Zusätzlich gibt es einen separaten Holzschuppen, der überdacht und nutzbar ist. Eine geschlossene Garage ca. 12qm. mit dichtem Dach kann als Stellplatz bzw. Lager genutzt werden oder auch als kleines Ferienhaus ausgebaut werden.

Für einen einfachen Lebensstandart ist das Haus sofort bezugsfähig, für gehobene Ansprüche bieten sich sehr viele Möglichkeiten in fast einmaliger Lage.

Es gibt nicht viele Liegenschaften dieser Art in Küstennähe und Ihre Suche nach geeigneten Objekten könnte daher hier erfolgreich enden. Sehen Sie dies als Verkaufsvorinformation, wir bewohnen das Haus noch selbst. Wir verkaufen gegen Höchstangebot und gegebenenfalls dann folgend auch per Inserat und ohne zusätzliche Maklerkosten. 

Ihre Mail an: hausverkauf@dxfreun.de - Besichtigung mit Termin möglich

Grundstück

Das Grundstück reicht jeweils bis zu den Baumreihen als Umrandung

Pläne

Landhaus an der Schwarzmeerküste zu verkaufen
Landhaus an der Schwarzmeerküste zu verkaufen
Landhaus an der Schwarzmeerküste zu verkaufen